Spændene, nyrenoveret lejlighed i den gamle børnehave
Nu får du en unik lejlighed for at leje denne skønne lejlighed, der sammen med 5 andre boliger, blev revet væk før en gennemgribende renovering fra gammel børnehave til 6 skønne boliger.
Med til boligen får du egen, flisebelagte gårdhave, hvorfra du også har din helt egen indgang til boligen.
Boligen er placeret dejlig centralt i Vemmelev, så du på mindre end 5 minutters gang kan gå DagliBrugsen, Netto, Vemmelev Skole, Vemmelevhallen og mere.
Boligen er indrettet med en stue, som giver adgang til de to værelser. I stuen kan du nemt indrette både spiseafdeling og sofa- og fjernsynsafdeling.
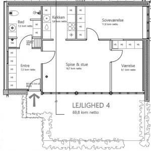
På billederne, kan du se plantegning for lejligheden. Bemærk, at det tegnede er indretningsforslag, hvorfor skabe m.m. ikke medfølger rækkehuset. Dog medfølger naturligvis viste inventar i køkken, som bliver fra Aubo.
I køkkenet er der naturligvis opvaskemaskine.
Der er mulighed for at installere egen vaskemaskine og tørretumbler.
Foran ejendommen kan du tilleje parkering. Pladserne bliver kontrolleret af parkeringsselskab. Den månedlige leje for p-pladsen er 300 kr.
Overtagelse fra 1. april.










