Nu får du en unik lejlighed for at leje denne skønne lejlighed, der sammen med 5 andre boliger, blev revet væk før en gennemgribende renovering fra gammel børnehave til 6 skønne boliger.
Med til boligen får du din helt egen skønne terrasse, som du har direkte adgang til fra stuen.
Boligen er placeret dejlig centralt i Vemmelev, så du på mindre end 5 minutters gang kan gå DagliBrugsen, Netto, Vemmelev Skole, Vemmelevhallen og mere.
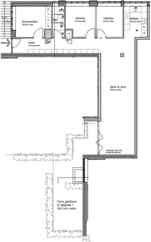
Boligen er indrettet med en entré, som fører. dig videre til resten af boligens rum, som inkluderer tre gode værelser samt en stor stue, hvor du nemt kan indrette både spiseafdeling samt sofa- og fjernsynsafdeling.
På billederne, kan du se plantegning for lejligheden. Bemærk, at det tegnede er indretningsforslag, hvorfor skabe m.m. ikke medfølger rækkehuset.
I køkkenet, fra Aubo, er der naturligvis opvaskemaskine.
Der er mulighed for at installere egen vaskemaskine og tørretumbler, som er gemt væk bag en lille dør i entré.
Foran ejendommen kan du tilleje parkering. Pladserne bliver kontrolleret af parkeringsselskab. Den månedlige leje for p-pladsen er 300 kr.
Bemærk, at der også er monteret ladestander på pladsen.











